La presidenta electa, Claudia Sheinbaum Pardo, anunció este lunes que, al igual que Andrés Manuel López Obrador, vivirá en un departamento habilitado dentro de Palacio Nacional cuando arranque su sexenio, por lo que esperará a que el actual mandatario y su familia concluyan la mudanza.
“Primero, está la parte de que trabajas en Palacio y eso te permite disponer del reparto del tiempo y, después, creo que una vez que el presidente puso la idea de vivir en Palacio Nacional. No regresaría a vivir a Los Pinos, evidentemente, y no me iría a vivir al Castillo de Chapultepec”, expresó la presidenta electa entre risas.

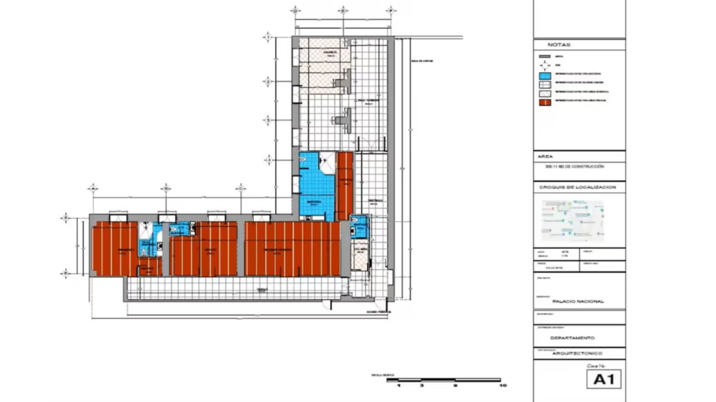
¿Cómo es el departamento de Palacio Nacional donde vivirá Claudia Sheinbaum?
En 2019, el presidente López Obrador dio a conocer el plano del departamento en Palacio Nacional, en el cual se instaló junto con su esposa, Beatriz Gutiérrez, y su hijo Jesús, al inicio de su sexenio.
El inmueble que habitará Sheinbaum junto a su esposo, José María Tarriba, a partir de 1 de octubre, mide poco más de 300 metros, cuenta con dos habitaciones, un estudio, cocina, sala y comedor.
“Me ayuda mucho el estar aquí, porque me ahorra como dos horas diarias. No tiene nada que ver con la parte histórica, este sitio ya estaba ocupado, impactado ya con una construcción, vamos a decir moderna, dentro del Palacio, no está junto a los salones”, dijo el mandatario en su conferencia, en julio de 2019.
El jefe del Ejecutivo aseguró que el resto de los salones de Palacio, que abarca corredores y los sitios históricos, se conservarían y no se van utilizarían para las actividades cotidianas.
“Vamos a atender en lo que era la oficina del Estado Mayor para no utilizar el comedor grande, a veces salen fotos en donde hacemos reuniones en el comedor principal del Palacio. Ya no se va a usar, solo para ceremonias de trascendencia cultural, diplomática”, dijo.
Más tarde, en 2020, AMLO abrió las puertas de su departamento para mostrar algunos detalles de la vivienda en Palacio Nacional en una entrevista realizada por Epigmenio Ibarra.




